Mooi perceel bouwgrond met diepe tuin en zicht op groen
€ 85 000
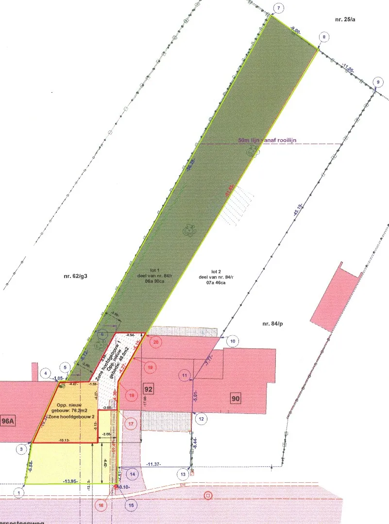
Dit bouwperceel komt in aanmerking voor een zeer ruime woning met 2 volumes, zie het plan hierbij.
Het grondperceel heeft een diepe tuin (in totaal ongeveer 65m en een breedte van 9 meter) met zicht op fruitbomen en weiland.
De oppervlakte bedraagt 6a 90ca, met een breedte aan de straat van 13m95.
De op te richten woning heeft een bouwbreedte van 13m13:
- het hoofdgebouw (gele kleur) heeft een breedte van 10m13 en een bouwdiepte van ongeveer 10 meter met 2 verdiepingen;
- de achterbouw (witte kleur) heeft een bouwdiepte van ongeveer 8 meter met 1 verdieping.
Hierdoor krijgt de woning de uitstraling van een half open bebouwing met meer ruimte voor ramen en lichtinval!
GEEN BOUWVERPLICHTING.
Het perceel is gelegen in woongebied met landelijk karakter, het gedeelte achter de vijftig meter in agrarisch gebied.
INTERESSE? Maak telefonisch een afspraak op het nummer 012 23 00 23 of mail uw vragen aan roland@immo-leroi.be.
Detail van het pand
Algemeen
| Adres: | Tongersesteenweg 92 Hoeselt |
| Referentie: | 23K10122-BG |
| Vraagprijs: | € 85.000/totaal |
| Type: | Grond |
| Beschikbaar vanaf: | Bij akte |
| Ligging: | Landelijk |
| Perceeloppervlakte: | 690 m² |
| Perceelbreedte: | 13,95 m |
| Perceeldiepte: | 65 m |
| Bebouwde opp.: | 125 m² |
| Type constructie: | Traditioneel |
| Gevelbreedte: | 13,13 m |
| Bouwlagen: | 2 |
| Algemene staat: | Normaal |
Indeling
| Tuin: | Ja |
| Tuin oriëntatie: | Noord-West |
| Tuin kwaliteit: | Verzorgd |
| Garage: | 1 plaats |
| Parking: | Ja |
Comfort
| Snelweg: | Ja - op 3000 m tot 4000 m |
| Treinstation: | Ja - op 4000 m tot 5000 m |
| Treinhalte: | Ja - op 4000 m tot 5000 m |
| Bushalte: | Ja - op minder dan 500 m |
| Winkel: | Ja - op 1500 m tot 2000 m |
| School: | Ja - op 500 m tot 1000 m |
| Kinderopvang: | Ja - op 500 m tot 1000 m |
| Bank: | Ja - op 1500 m tot 2000 m |
| Ontspanning: | Ja - op 1000 m tot 1500 m |
| Restaurant: | Ja - op 500 m tot 1000 m |
Wettelijke gegevens
| Kadastrale benaming: | Hoeselt 2 Werm |
| Kadastrale Nummers: | Sie A Nr 84R |
| Kadastrale Oppervlakte: | 690 m² |
| Voorkooprecht: | Neen |
| Verkavelingsvergunning van toepassing: | Ja |
| Stedenbouwkundige bestemming: | Woongebied met landelijk karakter |
| Dagvaarding en herstelvordering: | Geen rechterlijke herstelmaatregel of bestuurlijke maatregel opgelegd |
| Overstromingsgevoelig: | Niet meegedeeld |
| Overstromingsgebied: | Geen afgebakende zones |
| Overstromingskans perceel (P-score): | A |
| Overstromingskans gebouw (G-score): | A |
| Erfgoed: | Geen beschermd erfgoed |