ENERGIEZUINIG APPARTEMENT - GELIJKVLOERS MET TERRAS
€ 850 /maand
Dit appartement is uitstekend gelegen in het centrum van Tongeren, tussen de Kloosterstraat en het Museumplein en tussen kwalitatieve geklasseerde gebouwen.
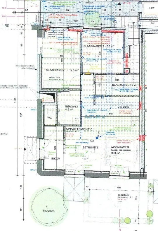
INDELING: Inkomhal met apart toilet, prachtige woonkamer met open keuken (voorzien van koelkast met diepvries, oven, microgolf en vaatwasser), berging/wasplaats, badkamer met inloopdouche en lavabomeubel, 2 ruime slaapkamer waarvan 1 met aparte dressing. Aan de woonkamer een mooi terras.
In de kelder een grote, private berging.
Extra:
x BEN waarden rond 0: zwaar geïsoleerde appartementen met een ZEER laag verbruik
x 7 zonnepanelen van 410Wp dus 2870Wp
x Verwarming met warmtepomp
x Hoogwaardige afwerking
x Alle verlichtingsarmaturen zijn inclusief met hoogwaardige Berker schakelaars
x Grote kelders/opslagruimtes
x Lift in het gebouw voorzien
De huurprijs bedraagt 850 euro per maand + 100 euro per maand energiepremie + 50 euro per maand gemeenschappelijke kosten.
Er zijn in totaal 6 nieuwe appartementen. Ook de andere appartementen zijn te huur.
Contacteer ons kantoor voor info op het nummer 012 23 00 23 of via mail kimberly@immo-leroi.be
Detail van het pand
Algemeen
| Adres: | Kloosterstraat 1/B Tongeren |
| Prijs: | € 850/maand |
| Type: | Appartement |
| Beschikbaar vanaf: | Onmiddellijk |
| Bewoonbare opp.: | 78 m² |
| Type constructie: | Traditioneel |
| Bouwjaar: | 2026 |
| Algemene staat: | Luxe-afwerking |
| Totale kosten: | € 150/maand |
Indeling
| Slaapkamers: | 2 |
| Badkamers: | Ja |
| WC: | Ja |
| Woonkamer: | Ja |
| Keuken: | Ja |
| Berging: | Ja |
| Terras: | Ja |
| Wasplaats: | Ja |
Comfort
| Snelweg: | Ja - op 4000 m tot 5000 m |
| Treinstation: | Ja - op 500 m tot 1000 m |
| Treinhalte: | Ja - op 500 m tot 1000 m |
| Bushalte: | Ja - op minder dan 500 m |
| Winkel: | Ja - op minder dan 500 m |
| School: | Ja - op minder dan 500 m |
| Kinderopvang: | Ja - op 500 m tot 1000 m |
| Bank: | Ja - op minder dan 500 m |
| Ontspanning: | Ja - op minder dan 500 m |
| Restaurant: | Ja - op minder dan 500 m |
| Raamwerk: | Aluminium |
| Beglazing: | Hoogrendementsglas |
| Verwarming: | Vloerverw. geheel, Warmtepomp - warmtepomp |
| Isolatie: | Volledig geïsoleerd |
| Lift: | Ja |
| Internet: | Ja |
| Mech. ventilatie : | Ja |
| Zonnepanelen: | Ja |
Wettelijke gegevens
| Overstromingsgevoelig: | Niet meegedeeld |
| Overstromingsgebied: | Niet meegedeeld |
| Erfgoed: | Niet meegedeeld |